
Vue depuis le bâtiment de l'Horloge et le jardin

Perspective de la façade Nord

Perspective du principe de façade

Axonométrie du bâtiment IGH Robert André

Élévation de la façade Nord

Axonométrie du principe de façade

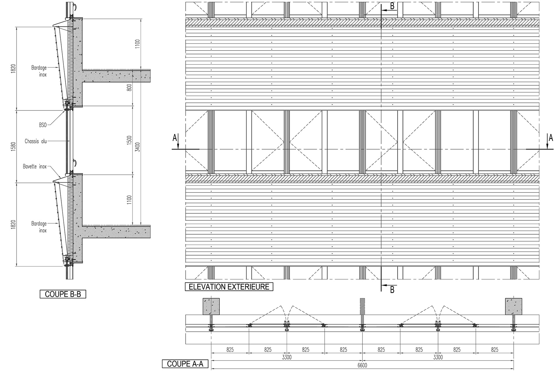
Détails de façade

Marché de Conception-Réalisation pour la rénovation énergétique des 28 000 m2 de l'IGH Robert André de l'Hôpital Saint-Antoine avec mise en place d’une ITE en façade derrière un bardage en acier inoxydable et remplacement des menuiseries extérieures. Opération en site occupé Mission complète aux côtés de Façade Ingénierie Construction Projet en collaboration avec Christophe Rousselle architecte Montant des travaux : 6,5 M€ HT Maître d’ouvrage : APHP Perspectives : ArtefactoryLab Contribution : Jérôme Santel